(02 Collective)


The Collective
What — A live-work-eat model of housing that imagines an inclusive, social and more secure way of urban living post global recession and failings of the neoliberal market economy.
Where — Los Angeles, California (2011)
Immunity implies a prophylactic violence to prevent a harmful violence – it interiorizes what it wants to protect against. Roumrecht (the right of space), which forms the heart of private law, protects the unified life as the embodiment of the activities of multiple intertwined lives: these should be able to thrive alone in the places where they realize themselves by themselves, which unavoidably means in their own borders to the exclusion of others.
– P. Sloterdijk (Spheres III: Foams, 2004)
Social Immunity
With the imminent collapse of the American housing bubble in 2007, the flaws of free market economics had been made evident: our economies are simply unable to sustain under unsanctioned and deregulated corporate financial activity. These forces that had caused what seemed to be an unforeseen crisis, had been in place from the beginning of market deregulation and had also been the principal force behind unprecedented national and global economic disparity. The rich who were becoming increasingly rich created greater of zones of exception for themselves that excluded, in particular, the poor who were becoming increasingly poor. These forms of bio-spatial exclusion although not new in cities, seems particularly striking in a nation defined as fully democratic.
German philosopher, Peter Sloterdijk likens this form of exclusion to social immunity and suggests the modern apartment to be a level of embodiment of it: "The modern apartment is a place to which undesired guests almost never have access. Here toxic people have to stay out, along with bad news, if possible. The apartment is developed into an ignorance machine or an integral defense mechanism. In it the basic right to not take note of the outside world finds its architectural support." (534-545) While modern conditions have driven the city dweller to seek increasingly sophisticated forms of immunity, it is the wealthy elite who have had the means – both political and financial power (which in the neoliberal state, are undifferentiated) – to act out their fantasies of immunity, of making borders.
Millionaire's Mile
This project is set on Wilshire Corridor, Los Angeles, a two-mile stretch on Wilshire Boulevard known as "Millionaire's Mile". It has been host to luxury residential high rises, equipped with exclusive amenities such as live-in nanny chambers, private elevators and 24-hour valet service. When the housing market came crashing down, it brought Millionaire's Mile with it, leaving a multitude of foreclosed high rises, made barren by its own devices. The subsequent fall of the economy should have signified only one thing: A new beginning. Whether or not the country will see a political revaluation of economic structures away from neoliberal economics is uncertain; so why not seize the opportunity at this time of uncertainty to reimagine these structures for ourselves.
The Foodies' Collective: A Housing-Enterprise Model
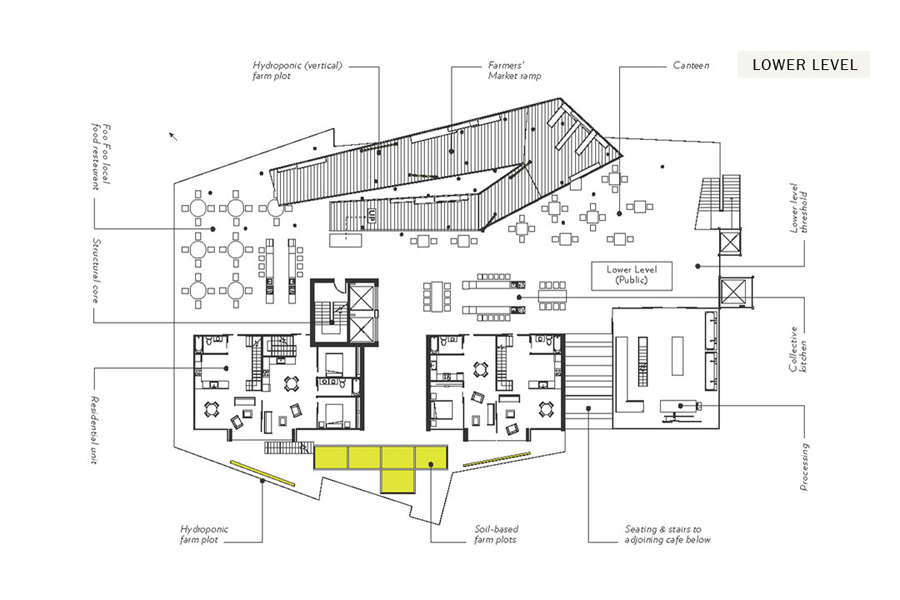
My team has designed a local economic housing collective which draws from notions of the solidarity economy and housing cooperative. This collective resides on the top six floors of a foreclosed high rise on the Wilshire Corridor, which studio teams have appropriated and transformed into a variety of residential collectives.The system my team developed emphasizes a transfer in values from the profit-driven to community-centred, while still acknowledging the realities of capitalism under urban existence. Working under the model of the housing cooperative, we add subsistence- and income-generating farming practice to the mix – a way of providing self-subsidized housing, food security and moderate income generation, all through one system. We imagine the model to be part of a larger network of agricultural-based housing and markets along the Wilshire Corridor as a means of reducing production costs and producing a more diverse range of products.


Organization + Operations
Our "Foodies' Collective" takes advantage of LA’s acclaimed local organic food culture and ideal agricultural climate. Each member of the cooperative purchases a plot of farm (hydroponic and soil-based) and becomes a microenterprise, with the option of selling their produce in the open-air public market ramp that is accessible from the northeast-facing sides of their residential units. Processing, greenhouses, collective kitchens, the restaurant and all other sub-services are shared among farming enterprises in order to reduce production costs and promote interaction. Also publicly accessible is the critically aclaimed “Foo Foo” restaurant-cafe, as well as sub-service operations. Access and circulation are designed in a way to promote collective activity, the sharing of knowledge and general consumption when the market is open to the public. This live-work-eat model of housing, which encourages interaction in the public sphere, offers an affordable, and therefore, inclusive means of living in a city like LA where economic disparity is at its height, and especially at a time of great economic instability.



